
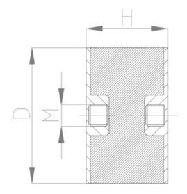
JNDE型橡膠減震器特性:
JNDE型橡膠減振器是由一頭配螺栓的鋼板,一頭配內絲的鋼板,中間圓柱形橡膠體組成,可壓縮和伸長,具有結 構簡單,安裝方便,耐油,耐酸堿,抗老化,耐溫等性能,廣泛應用于電子儀器,儀表,設備柜內,也可以用風 機,水泵,冷水機組等。由上下鋼板完全分離,不需另加附件即可減斷聲橋傳遞,是一種非常實用的減振器,尤 其適用于電子儀器儀表。
JNDE型橡膠減震器尺寸表:


直供水設備使用DN25橡膠膨脹節,以確保水流在管道中順暢流動,同時還能有效地防止因溫度變化引起的管道位移。 在直供水設備中,DN25橡膠膨脹節起著舉...
變頻無負壓供水設備中的DN32橡膠膨脹節是一種重要的部件,它能夠有效地吸收和消除由于溫度變化而產生的膨脹和收縮,從而保證了供水設備的穩定運行。...
優質供水設備中的DN150橡膠膨脹節具有獨特的設計和卓越的性能,可以有效地吸收由于溫度變化引起的管道伸縮,確保供水的穩定性和持續性。此外,該膨...
無壓供水設備中的DN200橡膠膨脹節是供水系統中不可或缺的一部分。它具有優良的彈性、耐腐蝕性、耐高溫性和耐老化性,能夠有效地吸收和減緩供水系統...
高壓增壓泵使用耐高壓橡膠膨脹節,是一種專門為高壓流體系統設計的彈性元件。它具有優良的耐壓性能和良好的彈性,能夠有效地吸收和補償高壓流體系...
防排水系統是建筑物和基礎設施的重要組成部分,其作用是防止水害并保持排水系統的正常運行。在這個系統中,橡膠膨脹節是一個關鍵的部件,其DN200規...
室外排水系統是城市基礎設施的重要組成部分,它負責收集和處理城市中的污水和廢水。為了確保排水系統的正常運行,需要使用各種管道和配件來連接和...
酒店給排水系統中的變徑橡膠膨脹節是一種關鍵的部件,它對于保證系統的正常運行和延長管道使用壽命具有重要的作用。 變徑橡膠膨脹節通常由橡膠材料...
地下室給排水系統中的絲扣橡膠膨脹節是一個關鍵部件,它的作用是連接管道并補償因溫度變化、地基沉降等因素引起的管道變形。這種膨脹節具有耐腐蝕...
自來水加壓泵中的16公斤橡膠膨脹節是一個關鍵部件,它對于確保自來水供應的穩定性和可靠性起著至關重要的作用。這個橡膠膨脹節具有優良的耐腐蝕性...
友情鏈接
橡膠膨脹節|橡膠膨脹節批發價格-上海松夏減震器有公司官方網站
聯系電話:021-64535755 24小時服務電話:18317127770 地址:上海市寶山區城銀路525弄